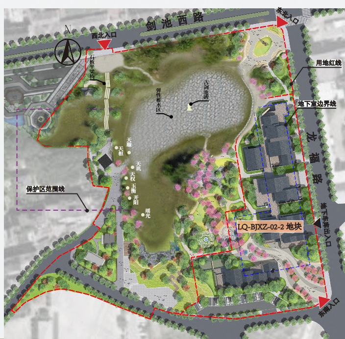
关于剑池湖遗址公园设计的建议
目前,龙泉市剑池湖遗址公园项目已进入设计方案批前公示阶段。作为关心龙泉风貌建设的市民,提以下几点建议:
一、顺应自然规律,不做逆天伤财事
据史料记载①,剑池湖在历史上面积约三十亩。但时过境迁,此湖在明代已经开垦为官田并逐年干涸。时至今日,其自然水量不足以支撑大面积蓄水景观,如强行引水蓄湖,成本巨大且必将增设大量管道设备,过于人工化,违背自然性原则。所以,本建议提出设计不用引水的“湖”。针对不用引水的“湖”的表现形式,本人有两种方案概念:
1. 旱湖形式
该种形式以湖泊干涸后的景观为设计灵感来源,利用草地、细沙营造大地景观,表现湖泊干涸后的郁郁葱葱;整体地形设计成外高内低,模拟湖水干涸后湖岸逐渐退缩到中心的洼地;粗石叠置成阶梯,模拟抽象成等高线形式的历代“湖岸”,再现千年水位变化痕迹; “湖心”区域用石板铺设,模仿湖底干涸后的龟裂纹,最中央区域用抛光材料(石材或者不锈钢)铺设,模拟液态湖面,中央立一块石碑,石碑上深深铭刻楷体榜书“剑池”。石碑底和湖心座用大量废弃宝剑剑身浇注成水泥块,并做出剑痕效果。“湖心”区域同时也是个下沉式微型露天剧场(“剑痕剧场”),可举办小型民众演出。
2. 集雨湖形式
该种形式主动将日常降水引入景观,间歇性呈现液态湖面。湖心以外部分与旱湖一样,同样利用草地、细沙营造大面积地景,表现湖泊干涸后的郁郁葱葱,整体地形设计成外高内低,模拟湖水干涸后的大坑。不同的是,外部草坡做引水槽,最终汇入中部“湖区”,中部“湖区”坡面用粗石块砌筑,石块中间不用水泥粘合,自然留缝,便于雨水下渗,湖心区域面积相对做大。湖心同样可以立一块“剑池”石碑。此湖旱涝皆有景,雨季时形成短暂水镜,映射周边山体倒影,隐喻湖泊消逝的时空循环,雨后初晴则可见龙泉古代十四景之“剑池雨霁”,同时作为保护性微气候调节水源,而多余的雨水则可通过较高位置的排水口排出进入城市排洪渠;干涸时期,就是市民游人休闲的下沉式大草坪和小广场。
以上两种“湖”,通过将干涸危机转化为文化觉醒契机,该项目不仅重塑了场所精神,更构建了“衰退景观”的再生范式——让消失的湖泊以另一种生命形态,持续滋养土地与社群记忆。
二、审美年轻化,景观吸睛引游客
龙泉市要“打造青春品质城市”,在城市景观建设上,就要把能吸引和留住优质年轻人作为项目设计的重要导向。对于在龙泉生活工作的年轻建设者,需要用高审美的城市景观来滋润其精神生活,需要在他们努力为龙泉发展创造价值时欣慰于龙泉公共景观在审美和品质上的进步,而不是被套路式的城市公园提醒山区小县的平庸落后。对于在社交媒体上的潜在游客,应该刷到龙泉令人眼前一亮的新颖景观,然后收藏、做攻略、买车票,不远千里也要来龙泉摆个姿势拍一套美美的打卡照,然后继续发在社交媒体,不断循环,病毒式传播,暴涨龙泉文旅流量,让龙泉人民能有机会接住这泼天的富贵。在晴朗的时候,青瓷博物馆外的大草坪总人满为患,而紧邻的老式花坛区块却没多少人,还有前几年大火的道太山石坑村“小草原”,以及沙潭河滩,无不证明了自然形态下的大面积纯净景观比那些匠气过度缺乏创新的公园对老百姓更具吸引力。
所以,剑池湖遗址公园,应该突破几十年来的老套路,大胆尝试大地景观类型的设计(如本建议的“旱湖”“集雨湖”等),让地形本身(草坪、沙地、滩地)来吸引眼球,突出“遗迹感”,用艺术化的形式讲述其历史变迁的故事。在绿化景观区和湖区,不要设置随处可见的具象化雕塑,不要新增除配套商业建筑外的亭台楼阁,不要采用需要定期修剪成几何形状的灌木,应该尝试大乔木和草地(或苔藓)的搭配。
三、承续文脉,适当恢复历史景观
剑池湖遗址公园的设计理念和原则中提到要“恢复剑池湖、重现七星井”。这本应先考证古代剑池湖的范围和大致轮廓和七星井其余六口井的点位,再根据历史景观和现有自然条件做适当恢复。但时间有限,在无考证的情况下,可以艺术化处理,根据一定文化内涵自主安排另外六口井的点位。
七星井,对应天上的北斗七星“天枢、天璇、天玑、天权、玉衡、开阳、瑶光”位置,如今独存“天枢”井,历代剑匠因敬仰欧冶子,每年端午节皆往剑池湖(井)挑水淬剑,所以其余六口井可以按照端午时候的北斗星方位,安排在湖区南边的草地中。
如果资金允许,可以恢复传统材料和形制的剑池亭,即卵石基墙、穿斗式木结构、竹编夹泥墙、干摆灰瓦,以传承龙泉传统建筑风格,并在亭后重新栽种形如华盖的三棵大松树,以恢复该龙渊地标盛景。
备注
① 《大清一统志·卷一一二·处州府·龙泉县》记载:剑池湖,在龙泉县南五里,周三十亩。《名胜志》周三十亩,世传欧冶铸剑于此。明代《栝苍汇纪·卷七·地理志》记载:……宏山北为笔架山,三峰如笔架,县学面此山。南为秦溪,剑池湖在其阴,周回数十亩。湖水清冽,时有瑞莲挺出。

您好!
您提交的《关于剑池湖遗址公园设计的建议》已收悉。感谢您对龙泉市城市建设和文化遗产保护工作的关心与支持!您提出的建议立足历史文脉传承、自然生态保护及城市品质提升,具有重要参考价值,我局高度重视,与龙泉市住房和城乡建设局及设计单位进行沟通,现将相关情况回复如下:
关于剑池湖遗址公园设计方案的建议,提出的两种“湖”形式(旱湖形式和集雨湖形式)确实具有一定的想法和文化内涵,但从实际效果、历史场景契合度、现场体验以及龙泉市的自然条件、后期管理等方面来看,设计坚持原方案(即恢复剑池湖)更为合理。lqgwh 2025-02-22 22:30发表于 浙江
lqgwh 2025-02-22 22:44发表于 浙江
网信龙泉
问政移动端